咨询热线:15161063129

私宅 | 奶油原木风:目光所及皆是温柔!

发布:liuwenzhong 浏览:483次

私宅 | 奶油原木风:目光所及皆是温柔!

将所能想到的,

美好、颜值、实用、氛围感,

皆赋予空间。


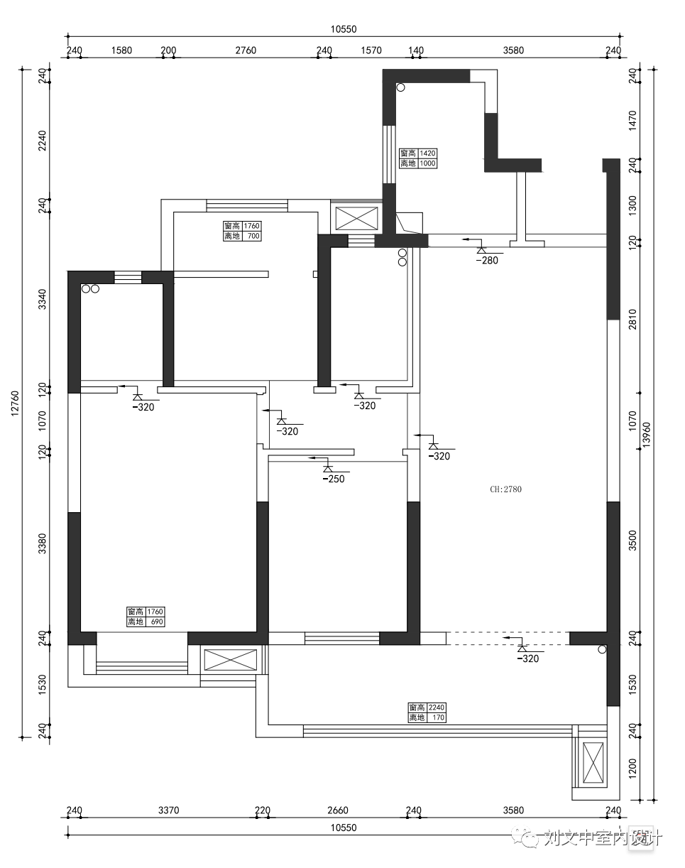
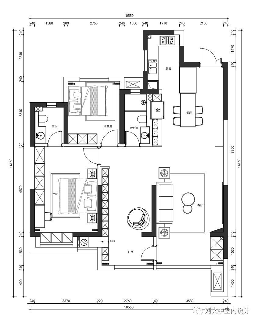
 项 目 信 息 


图片


项目地点丨云锦香都

Project locatio

项目面积丨120㎡

Project Area

项目户型丨平层

Project apartment

计团队丨姚素梅&陈俊兴

Design team


 平 面 图 呈 现 


图片图片图片

  实景呈现  

图片

图片


奶油色系与原木的碰撞,温柔而有力量,谦卑而有内涵。步入空间,缕缕冬日的暖阳相迎,素色淡雅的空间基调,糅合原木、绿植等元素,将自然美搬入家里,让每一个美学落脚点,都自然舒适。

图片

无主灯设计搭配氛围灯,营造多层次的浪漫氛围,在柔和的奶油色包裹之下,每一件家具、配饰都有着它特有的美感,让人不自觉享受慢下来的惬意生活。

图片

开放式厨房,小吧台完美衔接餐厅空间,从入户到餐厨空间,毫无遮挡,动线流畅。承载着大容量收纳的柜子也一定要以高颜值的形式存在,通顶的柜体从餐厅延伸至厨房,收纳主人的常用物品。

图片

留一个舒适的角落给自己,给未来。

图片


图片

图片

奶油系的空间基调,立体有序的线条,让单一的平面变得动感而有秩序,细腻而又精致。一床简单的质感寝饰、素色的布艺窗帘,描绘出一个自然舒适与温柔高级的私密空间。

图片

图片